No inspection time available for this property.
11 Almora Street
WOOLOOWIN
Off Market Opportunity: Live in or Knock Down and Build on Wide 14.3m Frontage
Set high on a generous block in a sought-after, tree-lined street, this well-maintained home offers a rare opportunity to secure your place in one of Brisbane’s most desirable inner-northern suburbs. Surrounded by character homes and within walking distance to everything, the lifestyle here is unbeatable.
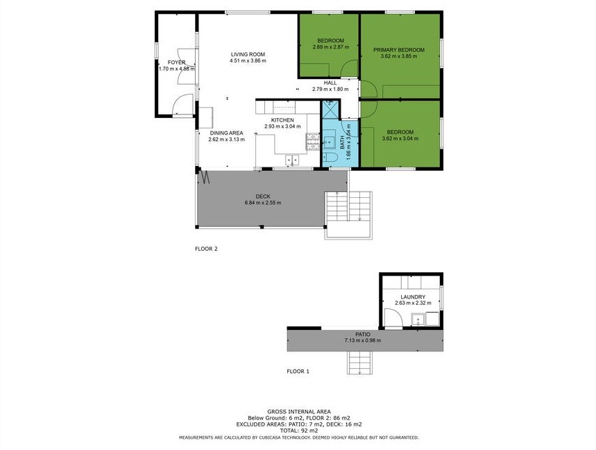
Step inside and you’ll immediately appreciate the polished hardwood floors, light-filled living spaces, and seamless indoor-outdoor flow. The spacious, modern kitchen is well-appointed with gas cooking, a dishwasher, ample storage, and a bi-fold servery window that opens directly to your private, covered deck-ideal for entertaining.
The updated bathroom features a stylish walk-in shower, and all three bedrooms include built-in wardrobes and ceiling fans. Plantation shutters add charm and functionality, while the air-conditioned living area ensures comfort year-round.
Downstairs, you’ll find a secure lock-up garage, laundry, and additional storage space-all fully fenced for peace of mind.
Property Features:
Approximate and rare 14.3m frontage
Post-war so you can knock down or shift the house off the block
3 spacious bedrooms with built-in wardrobes and ceiling fans
Stylish modern kitchen with gas cooking, dishwasher & bi-fold servery window
Central bathroom with walk-in shower
Open-plan living and dining area flowing to a covered entertainer’s deck
Front enclosed verandah with plantation shutters
Polished hardwood floors throughout
Air conditioning in main living area
2.5kW solar panel system
Downstairs Includes:
Secure lock-up garage
Separate laundry room
Additional storage space
Fully fenced yard
Prime Location:
Just 500m from Wooloowin train station, you’re only 11 minutes from Brisbane’s CBD. Walk to local cafes, restaurants, and shops, or catch a bus just 450m away. You’re also within the highly regarded Eagle Junction State School and Kedron State High School catchment zones, with several prestigious private schools nearby.
Access to the airport, major arterial roads, and both the Sunshine and Gold Coasts is just minutes away-making this location as convenient as it is prestigious.
This is your chance to secure a solid, beautifully maintained home in a premium position with endless potential-perfect to move in now, renovate further, or invest in for the future.
Don’t miss out-homes in this blue-chip pocket of Wooloowin are tightly held and rarely offered!
Please call the Clark Real Estate team for more details.
PERSONAL INFORMATION COLLECTION NOTICE
Clark Real Estate is committed to protecting the health and safety of our community and team members.
By attending a property inspection, you agree that your personal information will be recorded and kept by Clark Real Estate. If you do not agree, please contact our office on 07 3256 1600 prior to your arranged inspection time to change your inspection to a virtual inspection where you do not physically attend.
Don’t Just List, Sell For More!
Licence number: 32346


















